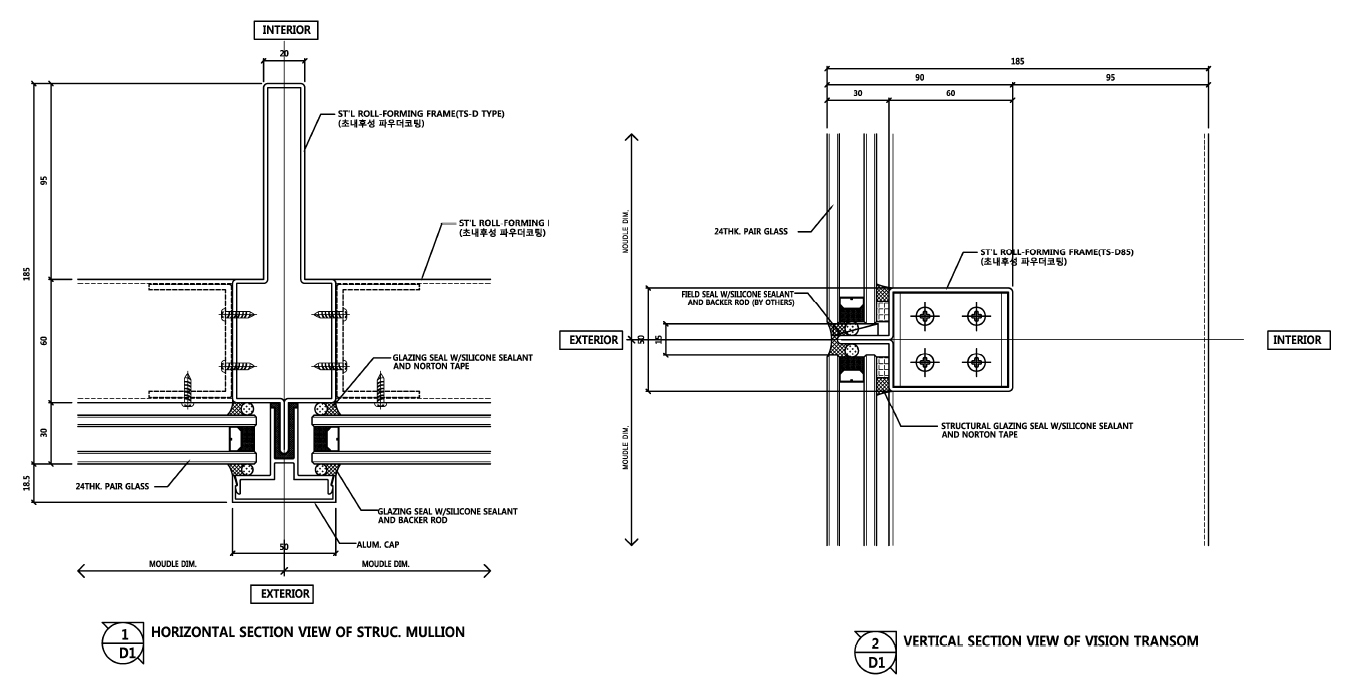
스틸커튼월시스템
Roll Forming System (DType)
- 아연도 강판을 사용하고 표면은 고내후성 파우더 코팅으로 마감한 제품
- 수직프레임은 T형태 이고 수평 프레임은 BOX 형태로 구성된 타입
TS-D58 (50X58X2.0T)
| 면 적 |
730.13 |
| 둘 레 |
651.98 |
| 경 계 상 자 |
X :-30.00 -- 30.00 Y :-52.56 -- 55.44 |
| 중 심 |
X : 0.00 Y : 0.00 |
| 관성 모멘트 |
X : 990436.70 Y : 352738.89 |
| 관 성 곱 |
XY : 0.00 |
| 회 전 반 경 |
X : 36.83 Y : 21.98 |
| 중심에 관하여 주 모멘트와 X-Y 방향 |
I : 352738.89 [ 0.00 1.00 ] J : 990436.69 [ -1.00 0.00 ] |
TS-D150 (50X150X2.0T)
| 면 적 |
730.13 |
| 둘 레 |
651.98 |
| 경 계 상 자 |
X :-30.00 -- 30.00 Y :-52.56 -- 55.44 |
| 중 심 |
X : 0.00 Y : 0.00 |
| 관성 모멘트 |
X : 990436.70 Y : 352738.89 |
| 관 성 곱 |
XY : 0.00 |
| 회 전 반 경 |
X : 36.83 Y : 21.98 |
| 중심에 관하여 주 모멘트와 X-Y 방향 |
I : 352738.89 [ 0.00 1.00 ] J : 990436.69 [ -1.00 0.00 ] |
TS-D180 (50X180X2.0T)
| 면 적 |
930.13 |
| 둘 레 |
851.98 |
| 경 계 상 자 |
X :-30.00 -- 30.00 Y :-75.79 -- 82.21 |
| 중 심 |
X : 0.00 Y : 0.00 |
| 관성 모멘트 |
X : 2701083.77 Y : 521005.55 |
| 관 성 곱 |
XY : 0.01 |
| 회 전 반 경 |
X : 53.89 Y : 23.67 |
| 중심에 관하여 주 모멘트와 X-Y 방향 |
I : 521005.55 [ 0.00 1.00 ] J : 2701083.76 [-1.00 0.00 ] |