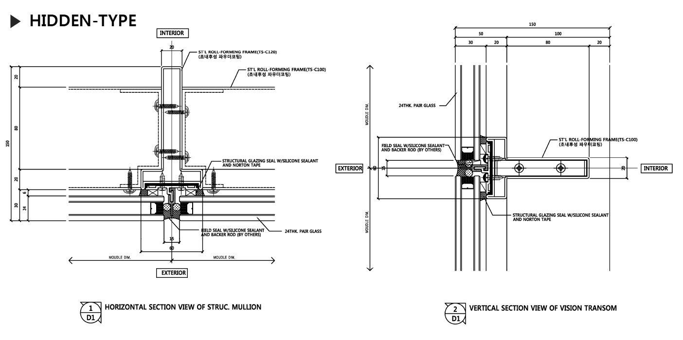
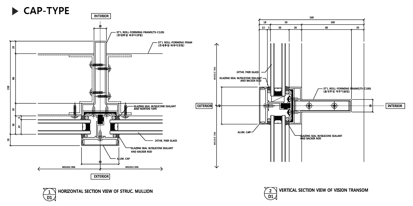
스틸커튼월시스템
Roll Forming System (CType)
- 아연도 강판을 사용하고 표면은 고내후성 파우더 코팅으로 마감한 제품
- T 형태로 구성된 제품 디자인이 필요한 공간에 활용
TS-C100 (60X100X2.0T)
| 면 적 |
639.42 |
| 둘 레 |
615.42 |
| 경 계 상 자 |
X :-30.00 -- 30.00 Y :-60.56 -- 39.58 |
| 중 심 |
X 0.00 Y : 0.00 |
| 관성 모멘트 |
X : 661884.62 Y : 164895.93 |
| 관 성 곱 |
XY : 0.00 |
| 회 전 반 경 |
X : 32.17 Y : 16.06 |
| 중심에 관하여 주 모멘트와 X-Y 방향 |
I : 661884.61 [ 1.00 0.00 ] J : 164895.91 [ 0.00 1.00 ] |
TS-C120 (60X120X2.0T)
| 면 적 |
719.42 |
| 둘 레 |
695.42 |
| 경 계 상 자 |
X :-30.00 -- 30.00 Y :-71.75 -- 48.25 |
| 중 심 |
X : 0.00 Y : 0.00 |
| 관성 모멘트 |
X : 1091241.31 Y : 171402.58 |
| 관 성 곱 |
XY : 0.00 |
| 회 전 반 경 |
X : 38.95 Y : 15.44 |
| 중심에 관하여 주 모멘트와 X-Y 방향 |
I : 1091241.31 [ 0.00 1.00 ] J : 171402.58 [ -1.00 0.00 ] |
TS-C150 (60X150X2.0T)
| 면 적 |
839.42 |
| 둘 레 |
815.42 |
| 경 계 상 자 |
X :-30.00 -- 30.00 Y :-88.27 -- 61.73 |
| 중 심 |
X 0.00 Y : 0.00 |
| 관성 모멘트 |
X : 2006438.50 Y 181162.59 |
| 관 성 곱 |
XY : 0.01 |
| 회 전 반 경 |
X : 48.89 Y : 14.69 |
| 중심에 관하여 주 모멘트와 X-Y 방향 |
I : 2006438.52 [ 0.00 1.00 ] J : 181162.58 [-1.00 0.00 |
TS-C180 (60X180X2.0T)
| 면 적 |
959.42 |
| 둘 레 |
935.42 |
| 경 계 상 자 |
X :-30.00 -- 30.00 Y :-104.41 -- 75.59 |
| 중 심 |
X : 0.00 Y : 0.00 |
| 관성 모멘트 |
X : 3296478.70 Y : 190922.58 |
| 관 성 곱 |
XY : 0.01 |
| 회 전 반 경 |
X : 58.62 Y : 14.11 |
| 중심에 관하여 주 모멘트와 X-Y 방향 |
I : 3296478.70 [ 0.00 1.00 ] J : 190922.58 [-1.00 0.00 ] |