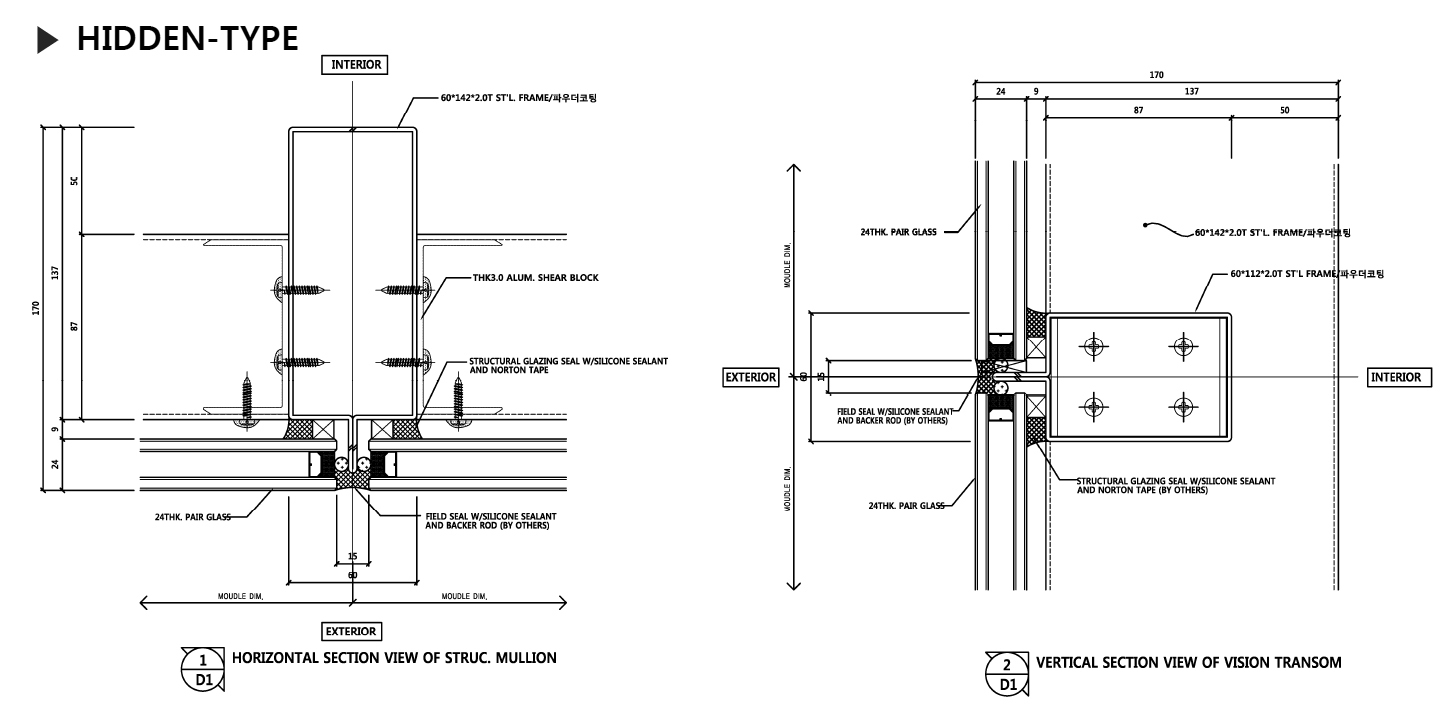
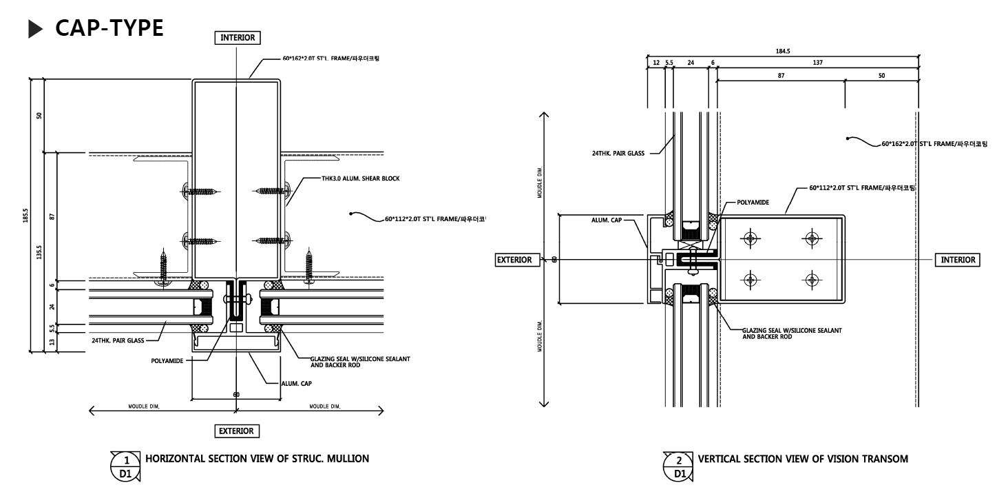
스틸커튼월시스템
Roll Forming System (BType)
- 아연도 강판을 사용하고 표면은 고내후성 파우더 코팅으로 마감한 제품
- 알루미늄의 형태를 그대로 스틸로 재현한 제품으로 조립 시공성이 우수함
TS-B120 (60X112X2.0T)
| 면 적 |
665.13 |
| 둘 레 |
619.13 |
| 경 계 상 자 |
X :-30.00 -- 30.00 Y :-60.36 -- 51.64 |
| 중 심 |
X 00 Y : 0.00 |
| 관성 모멘트 |
X : 881624.63 Y : 348451.64 |
| 관 성 곱 |
XY : 0.00 |
| 회 전 반 경 |
X : 36.41 Y : 22.89 |
| 중심에 관하여 주 모멘트와 X-Y 방향 |
I : 348451.63 [ 0.00 1.00 ] J : 881624.63 [ -1.00 0.00 ] |
TS-B150 (60X142X2.0T)
| 면 적 |
785.13 |
| 둘 레 |
739.13 |
| 경 계 상 자 |
X :-30.00 -- 30.00 Y :-74.76 -- 67.24 |
| 중 심 |
X : 0.00 Y : 0.00 |
| 관성 모멘트 |
X : 1694939.04 Y : 449411.64 |
| 관 성 곱 |
XY : 0.00 |
| 회 전 반 경 |
X : 46.46 Y : 23.92 |
| 중심에 관하여 주 모멘트와 X-Y 방향 |
I : 449411.63 [ 0.00 1.00 ] J : 1694939.04 [-1.00 0.00 ] |
TS-B170 (60X162X2.0T)
| 면 적 |
865.13 |
| 둘 레 |
819.13 |
| 경 계 상 자 |
X :-30.00 -- 30.00 Y :-84.45 -- 77.55 |
| 중 심 |
X 000 Y : 0.00 |
| 관성 모멘트 |
X : 2429855.86 Y : 516718.30 |
| 관 성 곱 |
XY : 0.01 |
| 회 전 반 경 |
X : 53.00 Y : 24.44 |
| 중심에 관하여 주모멘트와 X-Y 방향 |
I : 516718.30 [ 0.00 1.00 ] J : 2429855.85 [-1.00 0.00 ] |
TS-B190 (60X182X2.0T)
| 면 적 |
945.13 |
| 둘 레 |
899.13 |
| 경 계 상 자 |
X :-30.00 -- 30.00 Y :-94.20 -- 87.80 |
| 중 심 |
X : 0.00 Y : 0.00 |
| 관성 모멘트 |
X : 3337662.61 Y : 584024.98 |
| 관 성 곱 |
XY : 0.01 |
| 회 전 반 경 |
X : 59.43 Y : 24.8 |
| 중심에 관하여 주모멘트와 X-Y 방향 |
I : 584024.97 [ 0.00 1.00 ] J : 3337662.60 [-1.00 0.00 ] |